

全國服務熱線
石灰粉投加裝置
一、裝置簡述
在水處理系統過程中,酸性廢水的PH中和調節、金屬離子的還原、除磷、印染廢水的脫色等工藝中,投加石灰乳是目前較為常用和經濟的方法。因石灰乳一般采用市場較容易采購的生石灰粉配制,其儲存、轉移過程中容易產生大量粉塵,如處置不當,對四周環境形成二次污染,對操作員工身心也造成一定的傷害。石灰乳投加日常消耗量一般較大,要求連續性強,如采用人工方式進行搬運、溶解、投加,勞動強度大。為適應市場需要,滿足企業清潔生產要求,提高廢水處理站自動化控制水平,我公司研制的石灰儲存自動投加裝置具有安全清潔、操作簡單、自動化控制程度高等優點獲得用戶的廣泛好評。
二、工作原理
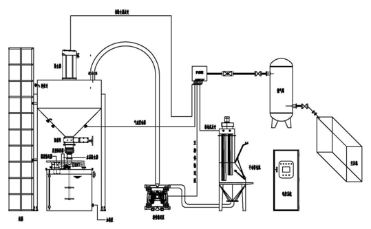
1、物料儲存
石灰乳儲存、自動投加裝置是一種將生石灰粉劑儲存、配置并自動投加的成套設備。石灰粉劑采用密閉式汽車罐車運輸,罐車配有氣力卸料輸送系統,由真空吸料方式,通過密閉管道系統將生石灰粉氣力輸送至石灰儲料倉中儲存。料倉設有自動物位儀,當倉內物料達高位或低位時,自動發出報警信號,提示操作人員停止注料或及時備料。
2、粉塵凈化
在進料過程中產生的粉塵自動收集至除塵裝置中,重新回至石灰儲料倉中,杜絕二次污染。除塵裝置采用布袋式除塵器,風阻系數小、除塵效率高、運行、維護費用低。并配備自動脈沖噴吹系統,定期對布袋進行清潔,保證系統的正常、高效運行。
3、物料輸送
儲存在石灰料倉的物料,經振打裝置下料、破拱裝置機械攪拌,將物料均勻下料至喂料機,螺旋輸送給料機將石灰粉劑送入溶解桶進行溶解。螺旋輸送機采用變頻電機,可根據現場工況條件自動調整藥劑的配置濃度。
4、制備投加
溶解槽一般設計為圓形容積式結構,設置電動攪拌器、自動液位儀、在線溫度儀、自動補水閥等。當溶解槽內液位降至低位時自動報警,并將投藥泵自鎖保護,防止投藥泵空轉損壞;當溶解槽內液位達高達時自動關閉補水閥;超高液位時自動報警,防止藥液事故溢流。生石灰消解時如溫度超過設定值,則自動停止物料輸送機并自動報警,提高系統的安全性。藥劑投加泵一般可選用抗堵塞性能較好的螺桿泵或氣動隔膜泵,投藥泵可根據處理工藝要求實現自動工作。
5、防堵清洗
石灰乳在投加過程中,由于投藥管道長且拐彎處較多,易造成管道堵塞。本裝置設置一套投藥管道閉路自動清洗系統,當投藥停止后,由PLC自動對投藥管道進行高壓水洗,沖洗水回流至清洗水槽實現閉路循環回用,節約沖洗用水量。為防止沖洗后的石灰渣沉淀堵塞清洗水泵,清洗水槽設備電動攪拌器,并在循環清洗1-2個周期后將清洗水置換至溶解槽,節約溶藥消耗用水量。
三、產品特點
1、物料倉的儲存能力10-30m3;石灰乳液(石灰乳)的制備濃度3-10%。
2、配置布袋除塵器,杜絕二次污染。
3、采用先進的下料振蕩器和破拱裝置,可以使石灰下料更流暢。
4、連續式全自動配制,物料給料機變頻調速,給料量調節范圍廣,石灰乳液配制濃度精度高。
5、采用先進的容積式生石灰消化裝置,可以通過合理的調整進料量和進水量的關系,調整*合適的消化溫度,使生石灰消化得更加完全,消化效率更高。
6、石灰投藥管道設置閉路循環自動清洗系統,防止堵塞,無泄漏,操作控制方便,尤其適用于含顆粒物料的過程輸送。
7、位計采用進口液位測量儀器,精確控制。
8、電氣控制系統采用先進的PLC自動控制系統,操作簡便,自動化程度高。
四、工藝示意
五、設計參數
計算條件 | 參數 | 單位 |
物料儲存倉容積 | 10-30 | M3 |
石灰質量流量(可調) | 30-50 | ㎏/h |
配制濃度(可調) | 5-10 | ﹪ |
溶解槽容積 | 2-4 | M3 |
清洗槽容積 | 2-4 | M3 |
除塵器 | 2000-3000 | M3/h |
適應處理站規模 | 1000-5000 | M3/d |
注:可根據用戶現場工況進行設計。
六、石灰儲存投加系統設備參數
表一:石灰投加系統設備參數
序號 | 名稱 | 規格參數 | 數量 | 備注 | |
1 | 物 料 儲 存 倉 | 料倉主體 | 有效容積:15M3 材 質:碳鋼防腐 | 1臺 | 立式圓罐 |
料位儀 | 型號:超聲波或雷達波 輸出信號:4-20mA | 1臺 | |||
破拱裝置 | 破拱裝置類型:機械+氣嘴 功 率:380V 0.55Kw | 1套 | |||
振動器 | 型 號:ZD-100 功 率:380V 100W | 3套 | |||
電動插板閥 | 型 號:DN400 材 質:閥板及閥桿SUS304 功 率:380V 1.1Kw | 1臺 | |||
手動插板閥 | 型 號:DN200 材 質:閥板及閥桿SUS304 | 1臺 | |||
安全爆破口 | 型 號:DN150 | 1個 | |||
檢修爬梯 | 材 質:碳鋼防腐 | 1個 | 鼠籠式 | ||
2 | 螺旋物料輸送機 | 規格直徑:108mm 材 質:SUS304 功 率: 380V 1.1Kw | 1臺 | 變頻電機 | |
3 | 溶 解 裝 置 | 槽體 | 容 積:4m3 材 質:碳鋼防腐 | 1臺 | 立式圓罐 |
電動攪拌器 | 型 號:BLD1-35-1.5 材 質:軸葉輪SUS304 功 率:380V 1.5Kw | 1套 | |||
自動液位儀 | 型 號:FY-25 材 質:U-PVC 輸出信號:4-20mA | 1臺 | 磁翻板 | ||
在線溫度儀 | 型 號:JWB-A-P 測量范圍:-50-300℃ 輸出信號:4-20mA | 1臺 | 插入式 | ||
自動補水閥 | 型 號:DN40 材 質:過流部件SUS304 功 率:220V 100W | 1臺 | |||
石灰乳投藥泵 | 流 量:6000L/h 材 質:過流部件SUS304 功 率:380V 2.2Kw | 2臺 | 一用一備 或氣動隔膜泵 | ||
Y型過濾器 | 型 號:DN50 材 質:過流部件SUS304 | 2臺 | 快洗式 | ||
4 | 清 洗 裝 置 | 槽體 | 容 積:4m3 材 質:碳鋼防腐 | 1臺 | 立式圓罐 |
電動攪拌器 | 型 號:BLD1-35-1.5 材 質:軸葉輪SUS304 功 率:380V 1.5Kw | 1套 | |||
自動液位儀 | 型 號:FY-25 材 質:U-PVC 輸出信號:4-20mA | 1臺 | 磁翻板 | ||
自動補水閥 | 型 號:DN40 材 質:過流部件SUS304 功 率:220V 100W | 1臺 | |||
回流閥 | 型 號:DN50 材 質:過流部件SUS304 功 率:220V 100W | 2臺 | |||
清洗水泵 | 流 量:6000L/h 材 質:過流部件SUS304 功 率:380V 2.2Kw | 2臺 | 一用一備 或氣動隔膜泵 | ||
Y型過濾器 | 型 號:DN50 材 質:過流部件SUS304 | 2臺 | 快洗式 | ||
6 | 除 塵 裝 置 | 槽體 | 材 質:碳鋼防腐 | 1臺 | 立式圓罐 |
布袋 | 配套 | 21只 | |||
風機 | 型 號:4-72 No3.2A 材 質:碳鋼防腐 功 率:380V 2.2Kw | 1臺 | 頂式安裝時可取消 | ||
脈沖氣包 | 型 號:DN250 材 質:碳鋼防腐 | 1臺 | 離心式 | ||
脈沖清洗閥 | 型 號:DN15 | 5臺 | |||
脈沖控制器 | 配套 | 1臺 | |||
手動插板閥 | 型 號:DN200 材 質:閥板及閥桿SUS304 | 1臺 | |||
風管 | 規 格:DN300 材 質:碳鋼防腐 | 1套 | |||
檢修爬梯 | 材 質:碳鋼防腐 | 1個 | 鼠籠式 | ||
7 | 電氣控制系統 | 采用PLC及觸摸屏控制系統,采用變頻器控制物粒輸送機,接收外界信號控制變頻控制計量泵投加量 | 1套 | ||
七、外界接口及輔助配套設施
表二:輔助配套設施參數
序號 | 設備名稱 | 規格 | 數量 | 備注 |
1 | 自來水管道 | 規 格:DN40 P≥0.3MPa 接 點:設備外圍1.0m | 配套 | |
2 | 壓縮空氣 | 規 格:DN40 P≥0.5MPa 接 點:設備外圍1.0m | 配套 | |
3 | 設備基礎 | 設備鋼砼基座,四周設置圍堰。 占面積約:8m×5m(長×寬) | 1套 | |
4 | 電源總進線 | 裝機容量:18Kw 運行功率:8.5Kw 規 格:380V/220V 50Hz 三相五線 接 點:送入主配電柜內 | 1套 |
注:1、工程范圍包括“表一”全部工作內容,并包含設備供應、指導安裝、系統調試及人員培訓費,并包含運輸費。除塵器可根據現場條件頂式安裝,取消風機。
2、工程范圍不含“表二”輔助設施。
八、設備選型參數
設備型號 | 儲存容量 | 物料儲存倉 | 溶解槽 | 物料輸送機 | 總功率 | 占地 | |
M3 | 直徑mm | 高度mm | M3 | Kg/h | Kw | m | |
CM-TLC-10 | 10 | 2000 | 8000 | 1.0 | 1-50 | 6 | 5.0×3.0 |
CM-TLC-20 | 20 | 2500 | 8000 | 3.0 | 5-100 | 8 | 6.0×3.5 |
CM-TLC-30 | 30 | 3000 | 8500 | 5.5 | 10-200 | 10 | 8.0×4.0 |
CM-TLC-50 | 50 | 3000 | 11000 | 9.5 | 50-500 | 14 | 10.0×5.0 |
CM-TLC-70 | 70 | 4000 | 11000 | 12 | 100-1000 | 20 | 12.0×6.0 |
CM-TLC-100 | 100 | 5000 | 11000 | 21 | 200-1500 | 25 | 13.0×6.0 |
CM-TLC-150 | 150 | 6000 | 11000 | 21 | 200-2000 | 28 | 13.0×8.0 |
CM-TLC-200 | 200 | 6000 | 13000 | 21 | 200-3000 | 30 | 13.0×8.0 |
CM-TLC-300 | 300 | 8000 | 13500 | 21 | 500-5000 | 30 | 15.0×8.0 |